Welcome to the future of inspired living at Saratoga Retirement Community.

aerial-6

A new chapter in comfort & connected living.

An exciting transformation is on the horizon at Saratoga. Construction on our approved expansion begins in Spring 2026, bringing beautifully designed apartment homes, thoughtfully crafted floor plans, and elevated amenities that enhance every aspect of daily life. Whether you’re seeking a stunning new home, deeper community connections, or more ways to stay active and engaged, this expansion is designed with you in mind.
SRC-Cottage-Rendering-scaled 1
SRC Expansion Rendering
SRC Expansion Rendering_Building A (2) (1)

Designed for
living well.

This expansion isn’t just about adding space—it’s about enhancing the vibrant, service-driven lifestyle that makes Saratoga Retirement Community one of the Bay Area’s most desirable places to live.

And, as a Life Plan Community with a forward-thinking approach to healthcare and lifelong peace of mind, Saratoga is here to support you, today and every day to come.

Explore a selection of our new floor plans.

Host friends in your beautiful new home. Connect with neighbors over gourmet meals in a stunning space where warm hospitality abounds. Enjoy resort-like amenities, supported by a comprehensive wellness program that nurtures your body, mind, and spirit.

What's coming to Independent Living.

Below are six of the 15 new layouts coming to Saratoga, showcasing a range of styles and sizes to suit a variety of preferences.

52 new apartment homes with high-end finishes and premium flooring.

15 unique floor plans ranging from 1,200 to 2,000 sq/ft.

An elegant new dining venue showcasing the exceptional cuisine Saratoga is known for.

Expanded parking for residents, guests, and staff.

A larger auditorium and meeting space for events and gatherings.

A significantly expanded fitness center with modern equipment and robust wellness programming.

Sterling Oak

Mariposa Building

bedroom
Bedroom: 2
bath
Bath: 2
size
Size: 1,402 sq. ft.
Powderhorn

Glen Arbor

Mariposa Building

bedroom
Bedroom: 2 + Den
bath
Bath: 2
size
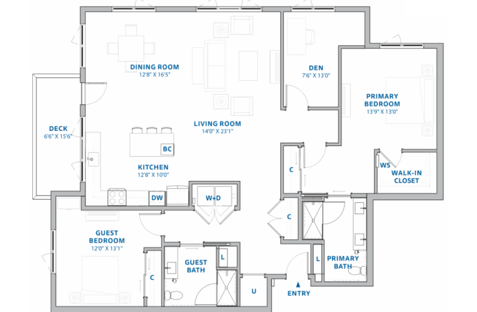
Size: 1,851 sq. ft.
Glen Arbor SRC

Lexington

Oakleaf Building

bedroom
Bedroom: 2
bath
Bath: 2
size
Size: 1,586 sq. ft.
Lexington SRC

Northampton

Oakleaf Building

bedroom
Bed: 2
bath
Bath: 2
size
Size: 1,586 sq. ft.
Powderhorn

Harleigh Court

Sycamore Building

bedroom
Bedroom: 1
bath
Bath: 1.5
size
Size: 1,072 sq. ft.
Harleigh Court SRC

Versailles

Sycamore Building

bedroom
Bedroom: 2
bath
Bath: 2
size
Size: 1,589 sq. ft.
Versailles SRC

Everything you want in one amazing place.

From beautiful apartments and cottages to unmatched amenities and services, Saratoga is retirement living at its finest. Schedule a tour today to see if our community is right for you.

Call 408-359-3008 today for a complimentary, personalized tour.

Or complete the form to receive our information brochure.

    By submitting this form, Transforming Age may contact me regarding my inquiry or future promotions. Note: you may opt out of future communications at any time.